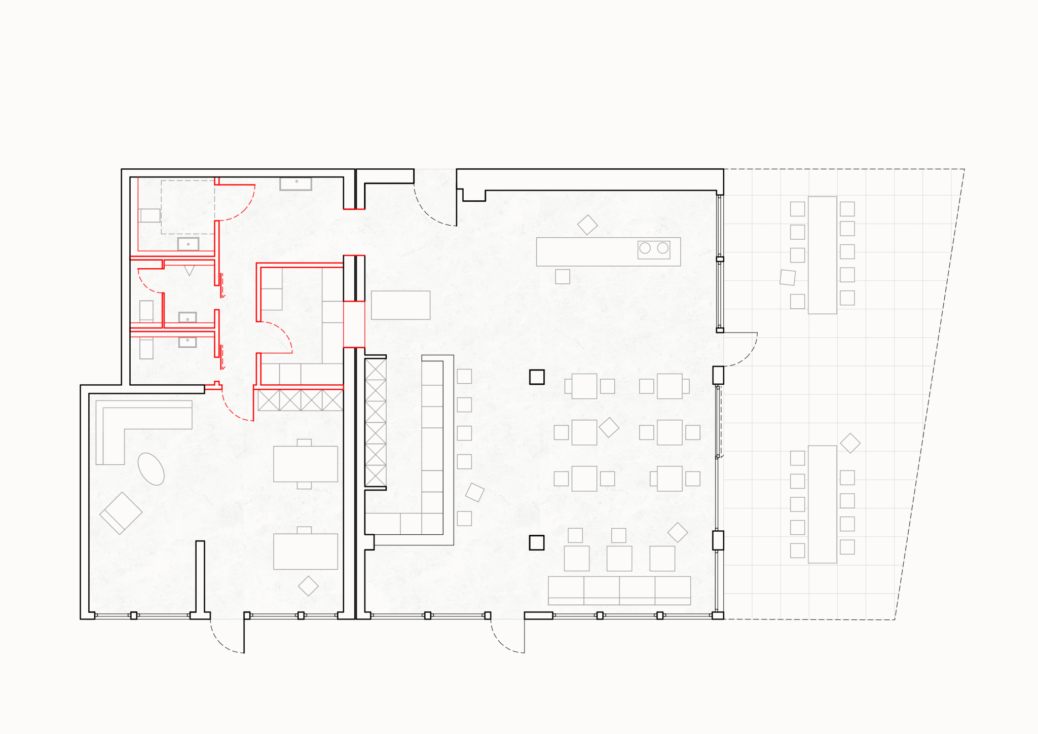
Gastronomie mit Büro
Zurück
Nächstes Projekt
Menu
Projekte
Büro
Kontakt
Impressum
Datenschutz
Projektart
Gastronomie
Ort
Offenbach am Main
Zeitraum
2021 -2022
Bauherrschaft
k.A.
1 / 1